CONTACT FORM
Quisque tincidunt ornare sapien, at commodo ante tristique non. Integer id tellus nisl. Donec eget nunc eget odio malesuada egestas.
SEND
Location & Address
Login form
Sorry, User can NOT register!

3589 ROYAL WOLF, BOZEMAN MT 59718

$799,900



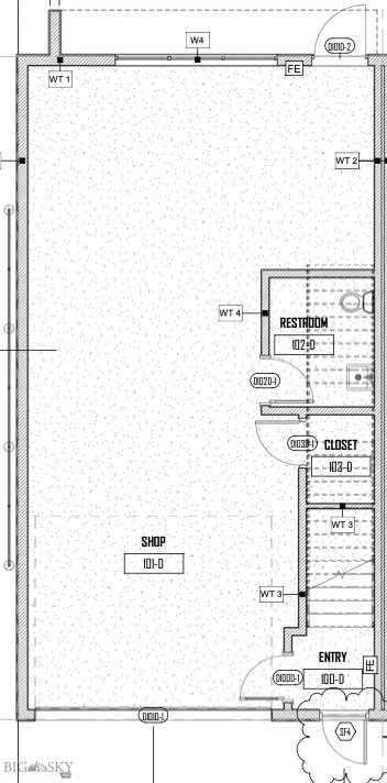
Come see these modern live/work condo units just 4 minutes from the 19th Street interstate interchange and about 12 minutes to downtown Bozeman, Belgrade, or Four Corners. Zoned M1, these versatile units allow you to live and work in the same space or rent the residential and shop areas separately. The shop offers 1,036 sq ft with 15-foot walls, a 12-foot-tall overhead garage door, and a half bathroom. Upstairs, the 1,120 sq ft living space features 14–15 foot ceilings, concrete floors, and large double sliding doors that bring in abundant natural light. The open-concept kitchen and living area includes quartz countertops and stainless steel appliances, along with a pantry, laundry area, full bathroom, and two bedrooms. Step out onto the upstairs patio to enjoy a morning coffee or evening glass of wine while taking in the views. Keywords: 3589 Royal Wolf, Bozeman MT 59718, Bozeman, MT, Bozeman City Limits, 1NW – Boz N of Main/W of 19th, Gallatin County, Nelson Meadows Subdivision, Residential, Condominium, Condo MLS# 409989

LET US SHOW YOU THIS PROPERTY

Craig Delger
Craig Delger
BROKER / REALTOR
406-581-7504
craigdelger@gmail.com



I am interested in 3589 Royal Wolf, Bozeman MT 59718.








  • SQ FEET

    1120

  • BEDROOMS

    2

  • BATHROOMS

    2

  • YEAR BUILT

    2026

  • Price: $799,900 
  • Price/SqFt: $714 
  • Status: Active 
  • Type: Condominium 
  • Property Search Type: Residential 
  • MLS#: 409989 
  • Address: 3589 Royal Wolf, Bozeman MT 59718 
  • City: Bozeman 
  • Zip: 59718 
  • Property Area: 1NW - Boz N of Main/W of 19th 
  • Subdivision: Nelson Meadows 
  • Year Built: 2026 
  • Beds:
  • Baths:
  • Square Feet: 1120 
  • Appliances: Dishwasher, Disposal, Range, Refrigerator 
  • Heating/Cooling: ForcedAir HeatPump CentralAir 
  • Roof: Metal 
  • View: Mountains 
  • HOA Pay Period: Quarterly 
  • HOA Amount: 95 
  • HOA Includes: SnowRemoval 
  • Utility Services: ElectricityAvailable, NaturalGasAvailable, SewerAvailable, WaterAvailable 
  • Builder / Architect: Carter-Kunz/Legends studio 
  • Listing Date: 2026-04-01 
  • Listing Agent: Kelsey Comer of Savage Real Estate Group 
  • Search Terms: 3589 Royal Wolf, Bozeman MT 59718, Bozeman, MT, Bozeman City Limits, 1NW - Boz N of Main/W of 19th, Gallatin County, Nelson Meadows Subdivision, Residential, Condominium, Condo