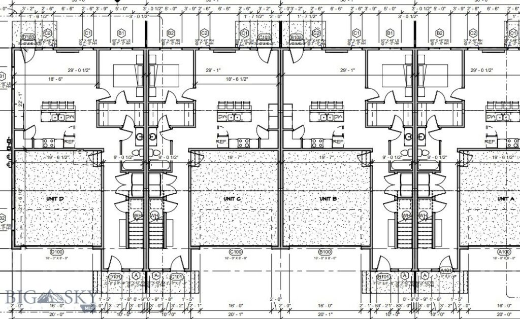
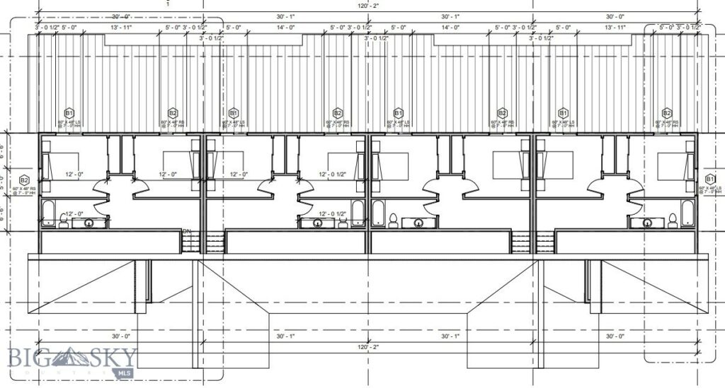
Welcome to the desirable West Post community! Available now are four brand-new under construction townhomes, each offering 3 bedrooms and 2 bathrooms in a thoughtful 1,500 sq. ft. layout. The main level is designed for convenience, featuring a primary suite, kitchen, living room, laundry area, and an oversized two-car garage. Upstairs, you’ll find two additional bedrooms and another full bathroom. The exterior boasts contemporary and modern architecture with metal roof and siding accents, while the covered front porch provides stunning views of the Bridger Mountains. You’re just one block from Askin Park, where you can enjoy the huge playground, covered picnic tables, a pond with a beach area, a fenced dog park, and a soccer field, all connected by a landscaped trail system. Conveniently located near I-90 and the BZN airport, you have seamless access to both Belgrade and Bozeman. With quality construction, thoughtful design, and an unbeatable location, these homes offer exceptional value in one of the valley’s most exciting communities. (Note: Construction is expected to be completed in the coming months. Photos are a representative sampling from the various units.) Keywords: 500 Edgar Street, Belgrade MT 59714, Belgrade, MT, 3B – Belgrade City Limits, Gallatin County, West Post Subdivision Subdivision, Residential, Townhouse, Contemporary MLS# 406372
-
SQ FEET
1500
-
BEDROOMS
3
-
BATHROOMS
2
-
YEAR BUILT
2026
-
ACRES
0.06
- Price: $460,000
- Price/SqFt: $307
- Acres: 0.06
- Status: Active
- Type: Townhouse
- Property Search Type: Residential
- MLS#: 406372
- Address: 500 Edgar Street, Belgrade MT 59714
- City: Belgrade
- Zip: 59714
- Property Area: 3B - Belgrade City Limits
- Subdivision: West Post Subdivision
- Year Built: 2026
- Beds: 3
- Baths: 2
- Square Feet: 1500
- Water Features: None
- Appliances: Dishwasher, Disposal, Microwave, Range, Refrigerator, SomeGasAppliances, Stove
- Heating/Cooling: ForcedAir NaturalGas None
- Roof: Asphalt,Metal,Shingle
- Patio/Deck: Covered,Porch
- View: Meadow, Valley
- Amenities/Safety Features: CarbonMonoxideDetectors,HeatDetector,SmokeDetectors,SecurityLights
- HOA Pay Period: Quarterly
- HOA Amount: 90.75
- HOA Includes: RoadMaintenance, SnowRemoval
- Style: Contemporary
- Basement: CrawlSpace
- Utility Services: CableAvailable, FiberOpticAvailable, NaturalGasAvailable, SewerAvailable, WaterAvailable
- Builder / Architect: Iron Horse Exteriors
- Listing Date: 2025-10-13
- Listing Agent: Joshua Kantor of Donnie Olsson Real Estate
- Search Terms: 500 Edgar Street, Belgrade MT 59714, Belgrade, MT, 3B - Belgrade City Limits, Gallatin County, West Post Subdivision Subdivision, Residential, Townhouse, Contemporary

































